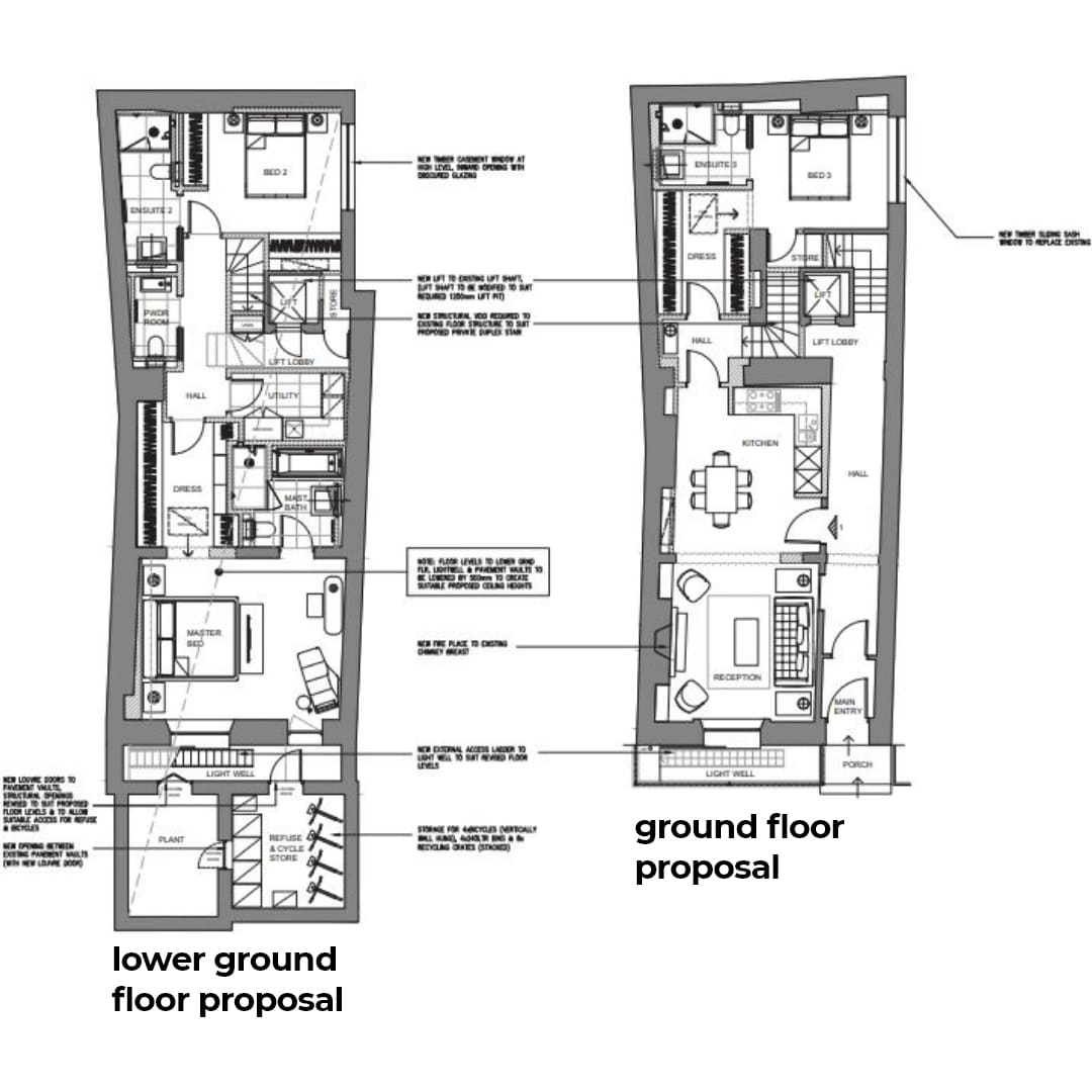
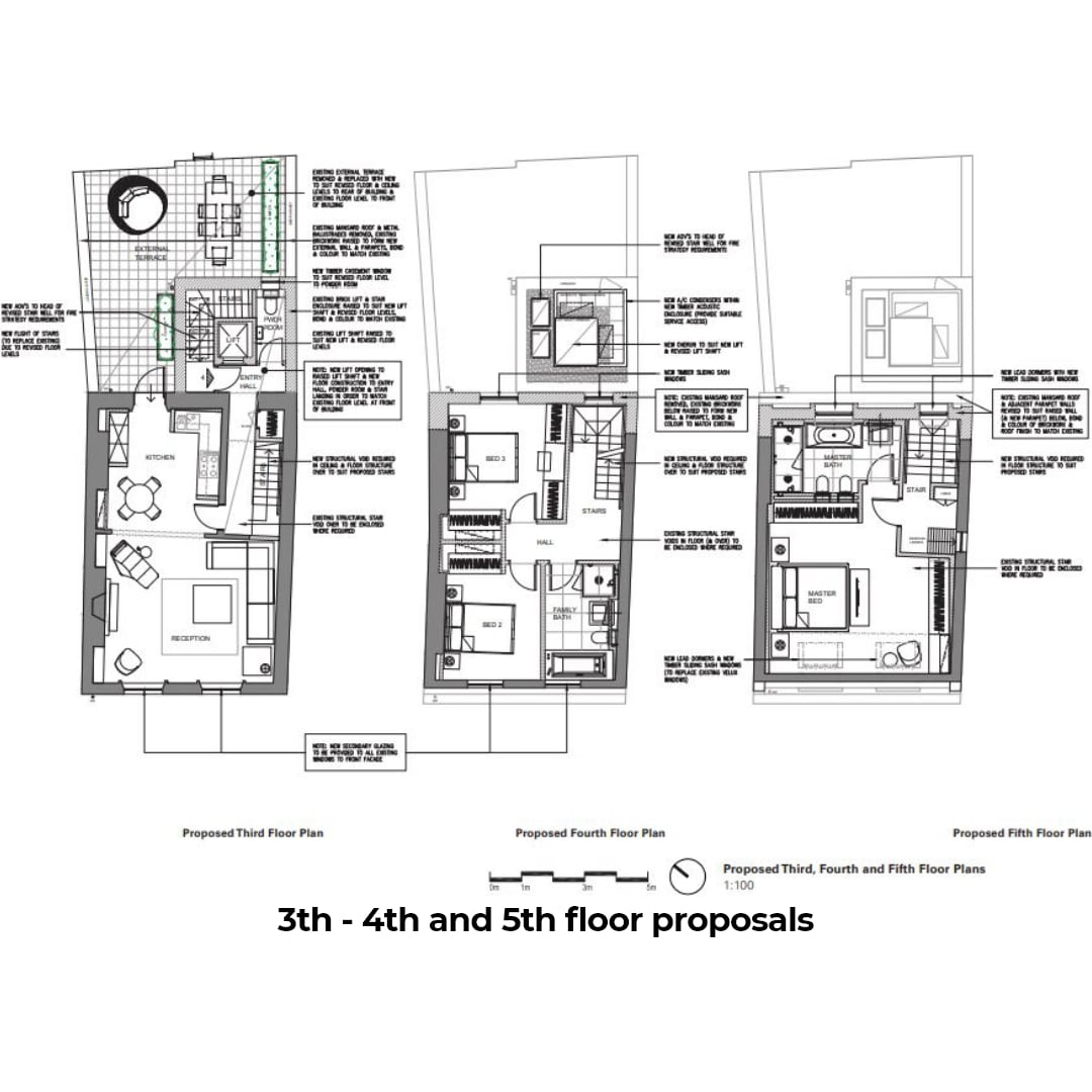
The project seeks to convert a tired office building into 4 flats we sought to keep the original features as this is a listed building. As addition to conserving the main staircase, some alterations were made to the original building to improve the communication between the different spaces. The project was presented in Autocad and InDesign.





